EN

    FELLINI RESIDENCES    |   

    MURATTI HÖFE    |   

    FERATTTI OFFICES    |   

    RUDOLF NELSON HAUS    |   

    UNDER THE STARS    |   

    VILLA CAEMILLA    |   

    BARBARA PLAZA    |   

    WEISSE TAUBE    |   

    WOHNEN IN FRIEDENSTAL    |   

    BLUESTAR DATACENTER    |   

    LIETZENBURGER STRASSE 79/81    |   

    LANDSBERGER ALLEE 315    |   

    KLEISTSTRASSE 1    |   

    VAN CAEM PARK    |   

ARTIKEL   |   EVENTS

New

Workspace



Bürogebäude – Kleiststraße 1


Fertigstellung:


Lage:


Grundstücksfläche:


BGF:


Etagen:


Pkw-Stellplätze:



Sonstiges:

in Planung


Kleiststraße 1, 10787 Berlin


976,17 m²


ca 2.541,05 m²


5-geschossig mit einem Staffelgeschoss


Tiefgarage mit 13 Stellplätzen, 

davon 3 rb-Stellplätze


- barrierefreier Zugang

- zentrale Aufzugsanlage

- UG mit Fahrradraum

- begrünter Innenhof mit Fahrradstellplätzen

1/8 Kleiststraße 1 – Hauptfassade

2/8 Kleiststraße 1 – Fassade Süd

3/8 Kleiststraße 1 – Fassade Nord

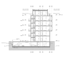
4/8 Kleiststraße 1 – Gebäudequerschnitt

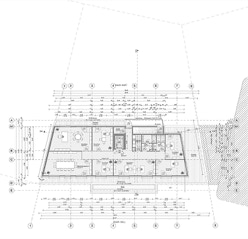
5/8 Kleiststraße 1 – Erdgeschoss

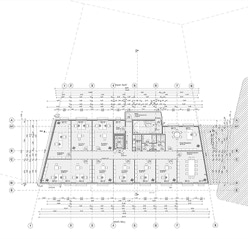
6/8 Kleiststraße 1 – 1. Obergeschoss

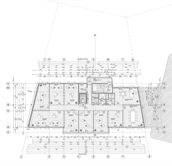
7/8 Kleiststraße 1 – 2. Obergeschoss

8/8 Kleiststraße 1 – Staffelgeschoss

OK

Diese Website verwendet Cookies. Bitte lesen Sie unsere Datenschutzerklärung für Details.