EN

    FELLINI RESIDENCES    |   

    MURATTI HÖFE    |   

    FERATTTI OFFICES    |   

    RUDOLF NELSON HAUS    |   

    UNDER THE STARS    |   

    VILLA CAEMILLA    |   

    BARBARA PLAZA    |   

    WEISSE TAUBE    |   

    WOHNEN IN FRIEDENSTAL    |   

    BLUESTAR DATACENTER    |   

    LIETZENBURGER STRASSE 79/81    |   

    LANDSBERGER ALLEE 315    |   

    KLEISTSTRASSE 1    |   

    VAN CAEM PARK    |   

ARTIKEL   |   EVENTS

Apartmenthaus 

Berlin City West



Apartmenthaus – Lietzenburger Straße 79/81


Fertigstellung:


Lage:


Architekt:

in Planung


Lietzenburger Straße 79/81, 10719 Berlin


Marc Kocher

1/5 Lietzenburger Straße 79/81 – Frontansicht

2/5 Lietzenburger Straße 79/81 – Wohnbereich

3/5 Lietzenburger Straße 79/81 – Bad

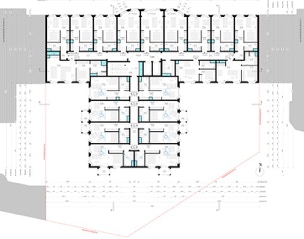
4/5 Lietzenburger Straße 79/81 – Erdgeschoss

5/5 Lietzenburger Straße 79/81 – 3. Obergeschoss

OK

Diese Website verwendet Cookies. Bitte lesen Sie unsere Datenschutzerklärung für Details.